











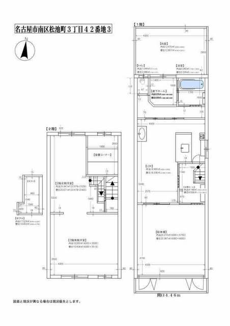
杉の木・和モダン一軒家・1台分無料駐車場付き【最大12名まで】
- 禁煙
- ペットNG
- 施設タイプ丸ごと貸切
- 定員12 名
- 寝室2 室
- 寝具ダブル 3 / 布団 2 / ソファベッド 3
- 浴室1 室
- 広さ110㎡
全面杉の木で屋根には梁があり、京町風の和モダンテイストです。 庭には喫煙スペースもあり、車庫付き建物です。 1階、2階ともにTV設置済み、2階には畳コーナーもあるので、ベット、布団ともに置いてます。 110㎡で広くカップル、ファミリー、シニア世代もどの世代でも居心地良い内装にしています。 ※事前の下記個人情報提出が必要※ 民泊新法としてホストは滞在者名簿の保管が義務付けられてます。(市によって内容が違います) ①.宿泊者全員分 1.氏名、 2.現在のお住まいの住所、 3.職業、 4.連絡先電話番号(日本滞在中に繋がる電話番号) ● 日本国籍の方身分証明証は必要ありません。個人情報だけでお願いいたします。 日本以外の国籍の方 写真付き身分証明証の提出も必要です。 ●情報はこちらのアドレスに送付お願い致します。 minpakuzyouhou@gmail.com (NG mailto:minpakuzyouhou@gmail.com) 件名にご予約の日程とご予約のお名前をご記入お願いします。







